Navigieren auf Risch

Inhaltsnavigation auf dieser Seite

Navigation
  • Mitteilungen
  • Zusatzkredit für die Sanierung des Hofs Binzmühle
01.10.2021

Zusatzkredit für die Sanierung des Hofs Binzmühle

01.10.2021
Anlässlich der Gemeindeversammlung vom 30. November 2021 wird den Stimmberechtigten der Gemeinde Risch ein Zusatzkredit über 1.1 Millionen Franken für die Sanierung des Hofs Binzmühle unterbreitet.

Anlässlich der Gemeindeversammlung vom 30. November 2021 wird den Stimmberechtigten der Gemeinde Risch ein Zusatzkredit über 1.1 Millionen Franken für die Sanierung des Hofs Binzmühle unterbreitet. Zurzeit liegen in der Planauflage im Foyer des Rathauses Risch die Pläne für das detaillierte Bauprojekt «Hof Binzmühle» zur Einsicht auf. Der Zusatzkredit wird nötig, da die Sanierungsmassnahmen für das Mühlegebäude, das Mittelhaus und die Remise nochmals verfeinert und die Nutzungen konkretisiert wurden. Der Souverän hat an der Urnenabstimmung vom 27. September 2020 einen Baukredit von 7.7 Millionen Franken für die Sanierung des Hofs genehmigt, wozu nun ein Zusatzkredit gesprochen werden muss.

Mehr erhaltenswerte Substanz gefunden

Die vertieften Abklärungen der Bausubstanz durch das Kantonale Amt für Archäologie haben unerwartet viele erhaltenswerte Strukturen und Elemente hervorgebracht wie z.B. Dekormalereien, historische Fenster, Parkettböden und Täferwerk. Die Wiederherstellung dieser Elemente ist aufwändig und mit entsprechenden Ausgaben verbunden.

 

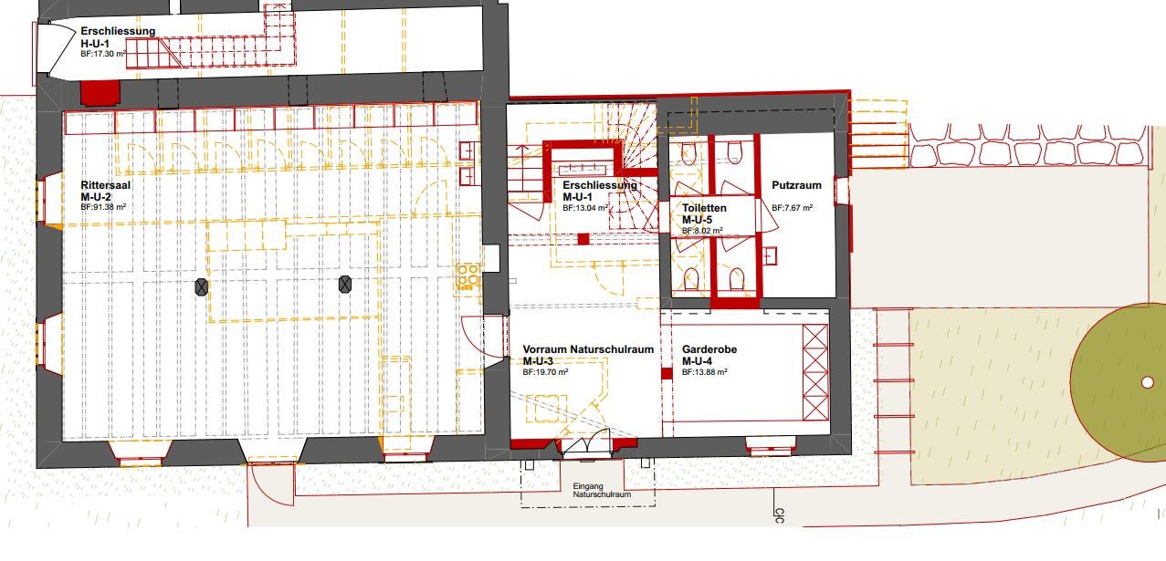
Naturschulraum
Bild Legende:

Naturschulzimmer im Rittersaal

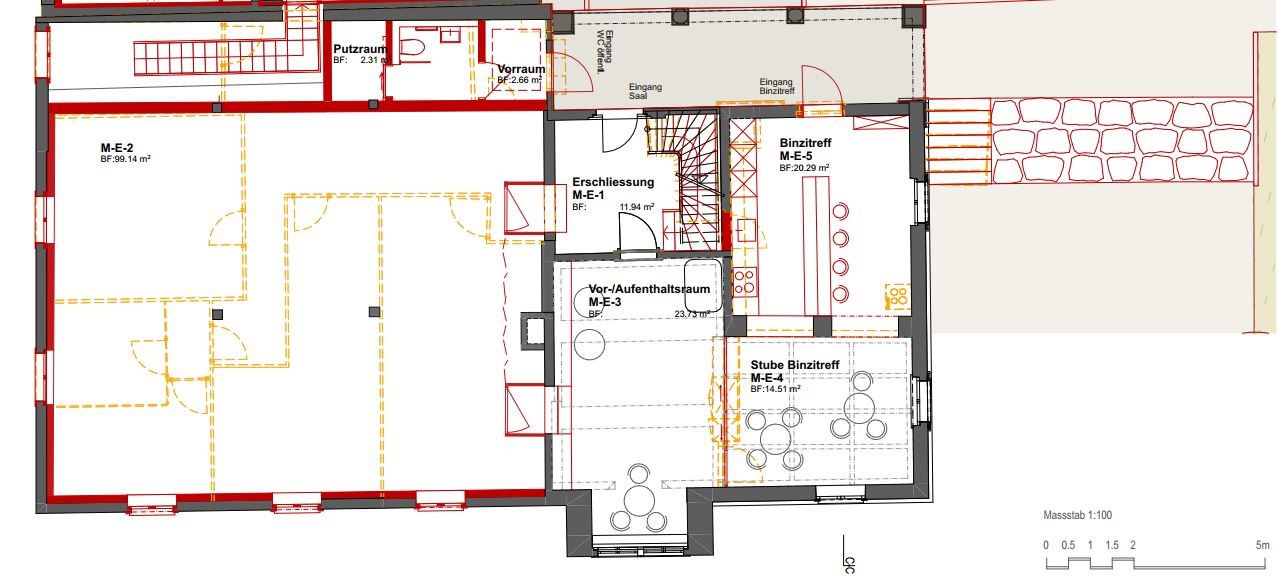
Das Sanierungskonzept sieht die Schaffung eines Naturschulzimmers in der Binzmühle vor. Dieses soll neu im Untergeschoss der Mühle realisiert werden. Der Ausbau des Rittersaals als externes Klassenzimmer und mit direktem Bezug zum Aussenbereich bietet viele Vorteile, damit bei Kindern die Neugier und das Verständnis an der Natur geweckt werden kann. Die dadurch im Erdgeschoss freigewordenen, im Edelrohbau erstellten Räumlichkeiten können zu einem späteren Zeitpunkt ausgebaut und somit autonom respektive variabel genutzt werden.

 

Untergeschoss:    Aussenplatz mit Feuerstelle
Bild Legende:
Untergeschoss: Vor Eingang Naturschulraum Aussenplatz mit Feuerstelle
Erdgeschoss:					 Rot = neu         Orange = Rückbau
Bild Legende:
Erdgeschoss: Rot = neu Orange = Rückbau

Zusatzkredit von 1.1 Millionen Franken

Für die Erhaltung von schützenswerten Strukturen und Elementen sowie die Umplatzierung des Naturschulzimmers muss ein Zusatzkredit von insgesamt 1.1 Millionen Franken bewilligt werden. Den Stimmbürgerinnen und Stimmbürgern von Risch wird deshalb an der Gemeindeversammlung vom 30. November 2021 ein Zusatzkredit für die Sanierung des Hofs Binzmühle von 1.1 Mio. Franken beantragt. Auch wenn ein grosser Teil der Mehrausgaben durch Beiträge der Denkmalpflege gedeckt werden kann, sieht das Finanzhaushaltsrecht vor, dass ein Verpflichtungskredit brutto, also ohne Berücksichtigung von Einnahmen, berechnet werden muss. Unter Berücksichtigung der Beiträge der Denkmalpflege ergibt sich ein Nettoaufwand zulasten der Gemeinde von 350'000  Franken.

Der Zusatzkredit über 1.1 Millionen Franken setzt sich wie folgt zusammen:

Positionen Ausgaben (inkl. MWSt.)
Mehraufwand Sanierung Mittelhaus und Mühlegebäude (inkl. Konservierung Malereien Mühle und Planerhonorare) 527'000
Mehrbestellungen (u.a. Naturschulraum, 1. OG Mühle, Binzitreff) 373'000
Umgebung (Aula, Weg) 115'000
Reserven 85'000
Total brutto 1'100'000
Erwartete Beiträge Denkmalpflege 750’000
Total netto 350’000

Fazit

Zusammenfassend sprechen die folgenden Gründe für den Zusatzkredit:

  1. Die vorgesehenen Rochaden im Mühlegebäude ermöglichen eine optimale Nutzung der bestehenden Flächen. Die Einbindung des Naturschulraumes mit einer festen Infrastruktur ergibt eine pädagogisch wertvolle Unterrichtsmöglichkeit.
  2. Der Erhalt der Malereien und Strukturen ist eine historische Bereicherung. Die Ablesbarkeit der verschiedenen Bauepochen macht den Hof Binzmühle zu einem besonderen Zeitzeugen.
  3. Mit den zu erwartenden Beiträgen des Amts für Denkmalpflege und vom Förderprogramm Energie relativieren sich die effektiven Mehrausgaben.
  4. Der resultierende kulturelle Gewinn ist dabei bedeutend.
      

Für Auskünfte steht zur Verfügung:
Patrick Wahl, 041 798 18 45

Weitere Informationen

Fusszeile