Navigieren auf Risch

Inhaltsnavigation auf dieser Seite

Navigation

Neubau Werk- und Ökihof

Öki- und Werkhof

einschliesslich Mantelnutzung und Tiefgarage

Ökihof
Bild Legende:

Projektbeschrieb

Die Gemeinde Risch plant den Neubau eines kombinierten Werk- und Ökihofs mit darüberliegender Mantelnutzung sowie einer Tiefgarage auf dem gemeindeeigenen Grundstück am Erlenring. Das Projekt steht für eine effiziente, nachhaltige und vorausschauende Entwicklung kommunaler Infrastruktur und wurde im Rahmen der übergeordneten Entwicklungsstrategie «Risch der Zukunft» erarbeitet.

Ausgangslage und Handlungsbedarf

Die bestehenden Standorte des Werkhofs an der Buonaserstrasse und des Ökihofs im Sportpark sind veraltet, räumlich überlastet und stehen ab dem Jahr 2028 nicht mehr zur Verfügung. Grund dafür sind umfassende Neubauprojekte in der Zentrumsentwicklung, insbesondere die Kantonsschule Ennetsee und das neue Sportparkgebäude.

Durch das Bevölkerungswachstum und höhere Umweltstandards steigen die Anforderungen an die Entsorgungsleistungen und die Unterhaltsarbeiten. Der vorgesehene Neubau schafft dafür eine moderne, leistungsfähige und zentral gebündelte Infrastruktur.

Standortwahl und Projektentwicklung

Nach einer Standortanalyse in den Jahren 2021 und 2022 wurde das gemeindeeigene Grundstück GS 2045 am Erlenring als idealer Standort bestimmt. Lage, Erschliessung, Grösse und Eigentum bieten optimale Voraussetzungen.
Danach führte die Gemeinde einen Architekturwettbewerb durch. Der Siegerentwurf «Erlenhof» der Arbeitsgemeinschaft Diagonal Architekten AG (Winterthur) überzeugte mit klarer Funktionalität, ressourcenschonendem Bauen und einem durchdachten Erschliessungskonzept.
Die Zusammenarbeit mit dem Zuger Zweckverband für die Bewirtschaftung von Abfällen (ZEBA) sichert die Qualität bei Planung und Betrieb des neuen Ökihofs.

Bild Legende:
Als Ensemble schaffen Werkhof und Mantelnutzung eine markante Front zur Industriestrasse und fügen sich mit präziser Geometrie und robuster Materialität in das industrielle Gefüge der Umgebung ein. Die zwei Zugänge im Erdgeschoss sorgen für eine klare Adressbildung.

Projektinhalt: Synergien, Nachhaltigkeit und Zukunftsfähigkeit

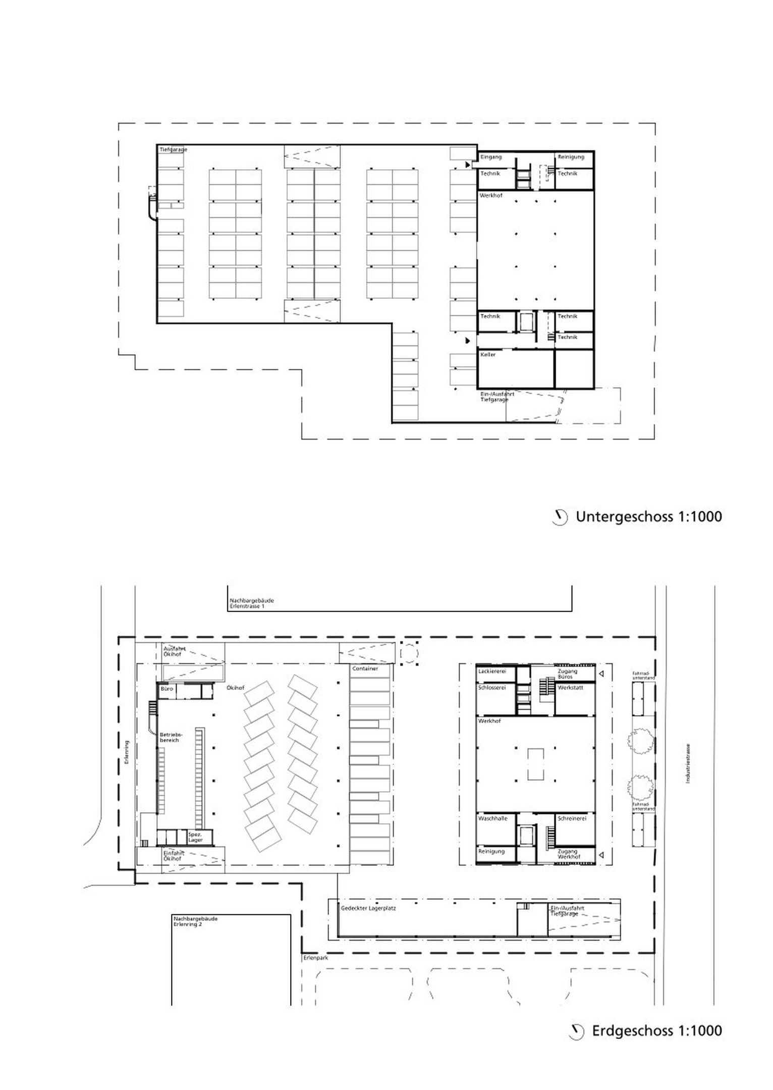
Das Projekt vereint vier Teilprojekte an einem Ort:

  • Werkhof: Auf drei Ebenen entstehen funktionale Werkstätten, Lager-​, Fahrzeug-​ und Aufenthaltsräume für den kommunalen Betriebsdienst. Die neue Infrastruktur gewährleistet sichere Arbeitsbedingungen und erlaubt effizientere Abläufe.
  • Ökihof: Die Bevölkerung profitiert künftig von grosszügigen, überdachten Sammelzonen, klarer Verkehrsführung ohne Rückwärtsmanöver, kurzen Wartezeiten sowie zusätzlichem Komfort. Die Entsorgungsinfrastruktur erfüllt modernste ökologische und logistische Standards.
  • Mantelnutzung: Über dem Werkhof entstehen vier Obergeschosse mit vermietbarer Fläche für Dienstleistungs-​ und Gewerbenutzungen. Die Einnahmen aus der Vermietung tragen wesentlich zur Refinanzierung des Projekts bei.
  • Tiefgarage: Die unterirdische Autoeinstellhalle mit 74 Parkplätzen dient der Mantelnutzung und dem Betrieb und sorgt für eine angemessene Erschliessung bei hoher Flächeneffizienz
Innenhof
Bild Legende:
Alle Nutzungen sind funktional klar getrennt und dennoch optimal aufeinander abgestimmt – architektonisch wie betrieblich.

Wirtschaftlichkeit und Nachhaltigkeit

Die haushälterische Nutzung des Baulands und die Förderung der Innenentwicklung sind zentrale Ziele des Projekts. Die Mantelnutzung ermöglicht eine mehrgeschossige Ausnutzung des Grundstücks und entspricht damit sowohl raumplanerischen Grundsätzen als auch wirtschaftlichen Anforderungen.

Zudem setzt die Gemeinde auf nachhaltige Bauweise: Der Einsatz von Recyclingbeton im Untergeschoss, Holz-​Beton-Verbundkonstruktionen in den Obergeschossen sowie ein durchdachtes Energiekonzept mit Erdsonden, die Tageslichtnutzung und die Photovoltaikanlage tragen dazu bei. Die freiwillige Unterstellung unter die Mehrwertsteuer ermöglicht zudem eine steuerliche Optimierung der Projektkosten.

Dezentrale Ergänzung: «Ökihöfe light»

Da sich der neue Ökihof künftig nicht mehr im Ortszentrum befinden wird, sind ergänzend kleinere dezentrale Sammelstellen geplant – sogenannte «Ökihöfe light». Sie sollen haushaltsnahe Entsorgung ermöglichen und besonders gut zu Fuss oder mit dem Velo erreichbar sein. Die erste Anlage entsteht voraussichtlich ab Ende 2025 an der Sonnhaldenstrasse.

Zeitplan

Neubau Werk- & Ökihof, Timeline
Bild Legende:
Timeline

Die Gesamtkosten des Projekts betragen 46.4 Millionen Franken (inkl. Grundstückskosten von 5.8 Millionen Franken). Nach Abzug der bereits bewilligten Planungskredite wird ein Objektkredit in Höhe von 44.4 Millionen Franken beantragt. Davon entfallen 24.4 Millionen auf das Verwaltungsvermögen und 20 Millionen auf das Finanzvermögen (Mantelnutzung).

Bürofläche
Bild Legende:
Die Büroflächen der Mantelnutzung sind grosszügig und modern gestaltet. Für die Gewerbe- und Bürofläche spricht vor allem das flexible Grundrisskonzept und die lichtdurchfluteten Räume.

Ein Projekt mit spürbarem Mehrwert

Mit dem Neubau entsteht ein Ort, der Effizienz, Umweltbewusstsein und städtebauliche Qualität vereint. Die Bevölkerung von Risch profitiert von:

  • kürzeren Wartezeiten und mehr Komfort bei der Entsorgung
  • moderner Infrastruktur für den Werkdienst
  • wirtschaftlicher Nutzung von Gemeindeland
  • zusätzlichen Arbeitsplätzen und Impulsen für innovative Unternehmen
  • einem Beitrag zur Zentrumsentwicklung und Lebensqualität in Rotkreuz

Was bisher geschah

Wann Was
Februar 2020 Überprüfung der Standortoptionen
März und April 2020 Definition des Raumbedarfs und der Rahmenbedingungen
Mai 2020 Erste räumliche Überprüfungen
9. September 2020 Genehmigung des Objektkredits an der Gemeindeversammlung
13. Juni 2021 Genehmigung des Wettbewerbs- und Projektierungskredits an der Gemeindeversammlung
März 2024 Abschluss Projektwettbewerb Siegerprojekt Erlenhof
13. - 17. Mai 2024 Ausstellung Wettbewerbsprojekte
26. November 2024 Gemeindeversammlung Zusatzkredit Neubau Werk- und Ökihof Rotkreuz, Planungskredit

Nächste Schritte

Wann Was
8. September 2025 Öffentliche Veranstaltung (Dorfmattsaal), 19.00 Uhr
28. September 2025 Urnenabstimmung Objektkredit Neubau Werk- und Ökihof
Oktober 2025 Einreichung Baueingabe
Frühling 2026 Baustart 
Oktober 2025 - Mai 2027 Ausschreibung 
Februar 2026 - Juni 2027 Ausführungsplanung
Sommer 2028 Betriebsaufnahme Neubau Werk- und Ökihof

Unterlagen

Unterlagen
Typ Titel Bearbeitet
Präsentation Informationsveranstaltung vom 08.09.2025 16.09.2025

Weitere Informationen

Auftraggeber

Patrick Wahl


Gemeinderat

Projektleiter

Gregory Benoit


Projektleiter

Abstimmung Neubau Werk- und Ökihof

Fusszeile