Navigieren auf Gemeinde Hünenberg

Inhaltsnavigation auf dieser Seite

Navigation
10.06.2025

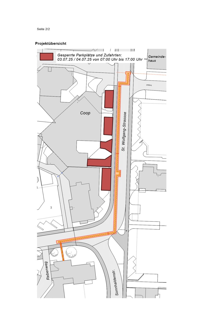
BiEAG Erweiterung Fernwärmenetz St. Wolfgangstrasse / Rebenweg

10.06.2025
10. Juni 2025
Bild Legende:
Bild Legende:

Weitere Informationen

hidden placeholder

Hberg Verwaltung

Fusszeile

Deutsch